fbpx

DEADLINE BROUGHT FORWARD

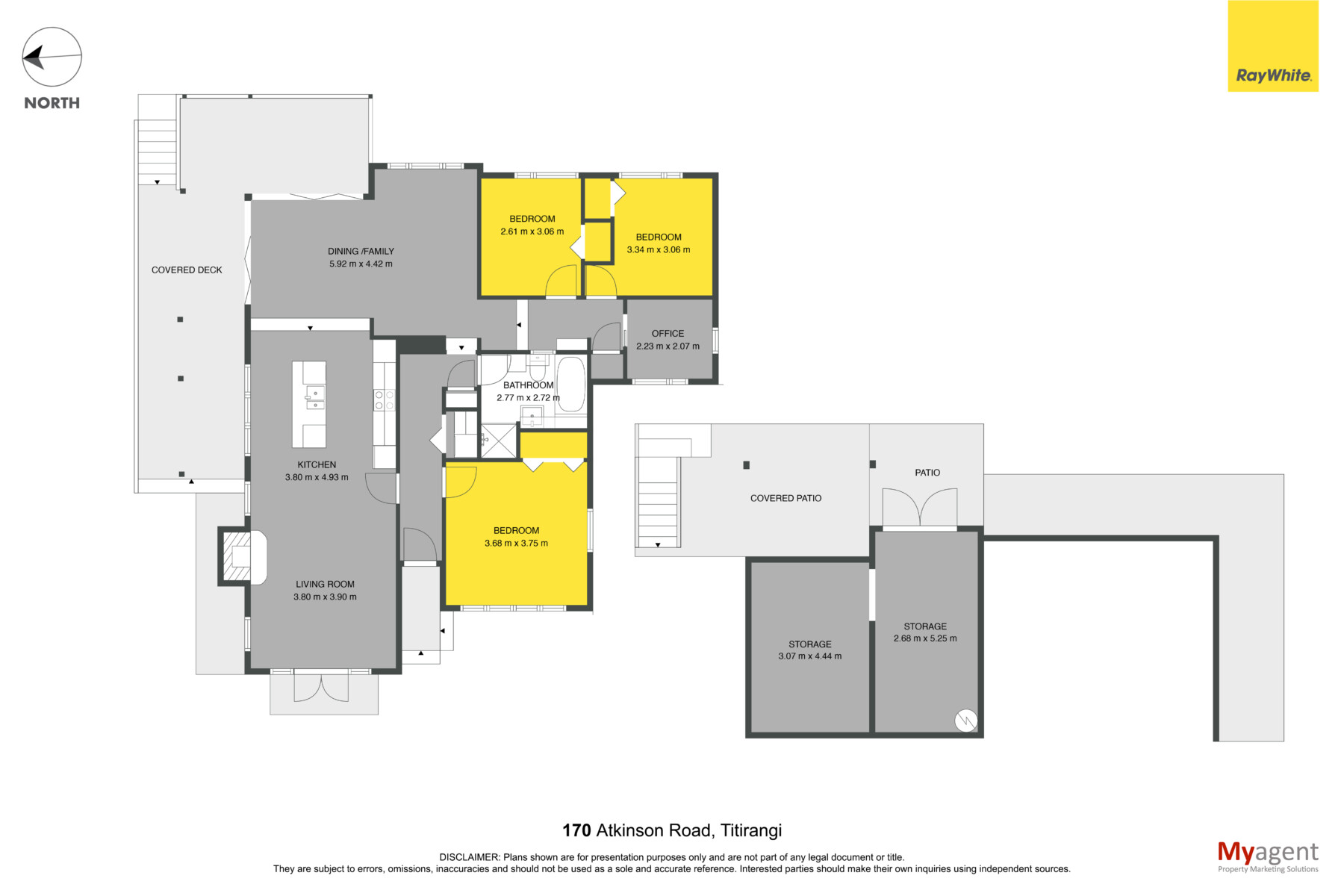
170 Atkinson Road, Titirangi
Deadline Sale: 18 Nov, 12pm

Description

Due to an acceptable pre-deadline offer, the deadline is now Tuesday 19 November at 12pm.

Lovingly updated and extended over the years, this warm and inviting home blends 1940s character with the modern comforts of a 2015 extension. Offering three double bedrooms plus a dedicated office or extra storage space, it’s designed to adapt with your lifestyle as your needs evolve.

Cherished by the current owners since 2006, this is a home that has truly been hard to leave. They’ve loved its character, the exceptional neighbours, and the convenience of the location, a combination they say has never been matched by any other home they’ve seen.

Step inside and you’ll find open-plan split-level living, with the kitchen perfectly positioned between two lounge areas. It’s a layout that gives natural separation while maintaining connection, ideal for family life or relaxed entertaining. Double glazing, insulation, and rewiring provide peace of mind and year-round comfort, while updated appliances, new windows and doors, and thoughtful extensions add to the home’s appeal. The home has been re-roofed and clad in timber board and batten.  Character features from its 1940s origins remain beautifully intact.

The home’s floor area now extends to approximately 130m² (from its original 75m²), with a design that works beautifully for families and professionals alike.

Outdoors, a manicured flat lawn offers a perfect play space for kids and pets, while a covered deck with lighting flows directly from the living room, ideal for year-round entertaining or quiet evenings under the glow of soft light. There’s also off-street parking for up to three vehicles, and while the property sits on a busy road, excellent public transport options are just steps away.

Families will also appreciate being in zone for both Kaurilands Primary and Titirangi Primary along with Glen Eden Intermediate and Green Bay High School, all within easy walking distance, mornings will be a breeze. The village is a short walk away where you can grab a coffee on your way to dropping the young ones off to kindy.  This is an opportunity to secure your place in this sought-after school zone in time for the 2026 school year — a wonderful chance to give your family the lifestyle and community they’ll love for years to come.

DEADLINE SALE: Tuesday 18 November, 12pm (unless sold prior)

OPEN HOME: Saturday & Sunday 1-1.30pm or give us a call for private viewing

Property Documents

  • 1. Title- 170 Atkinson Rd
  • 2. Memorandum of Transfer(383408) - 170 Atkinson Rd
  • 3. Price Guide - 170 Atkinson Rd
  • 4. Property Summary Report - 170 Atkinson Road
  • 5. Rates - 170 Atkinson Road
  • 6. Covenant (10456888_1) 170 Atkinson Road
  • 7. S&P Agreement - 170 Atkinson Rd
  • 8. 170 Atkinson Road, Titirangi - LIM
  • 9. Acknowledgements & Disclosures - 170 Atkinson Rd

Detail

  • Icon
    3
    Bedrooms
  • Icon
    1
    Bathrooms
  • Icon
    Property Size
    130 m2 (more or less)
  • Icon
    Land Size
    822 m2 (more or less)
  • Icon
    3 x OSP
    Garage

Updated on November 19, 2025 at 3:17 am

Video

Contact Agent

Bronwyn Scott-Woods

Contact Agent

  • Bronwyn Scott-Woods
  • 021 613 632
  • 09 817 8011
View listings

Inquire about this property